Archive for July, 2009

the beginning

Tuesday, July 28th, 2009

July 12, 2009
070120090940701200909807012009096

Demolition/Framing

Tuesday, July 28th, 2009

July 22, 2009
0723200920807222009205072220092040722200920307222009200072220091990722200919807022009099

Renderings

Monday, July 27th, 2009

Here are some rendering of the finished product.  Don’t mind the colours!

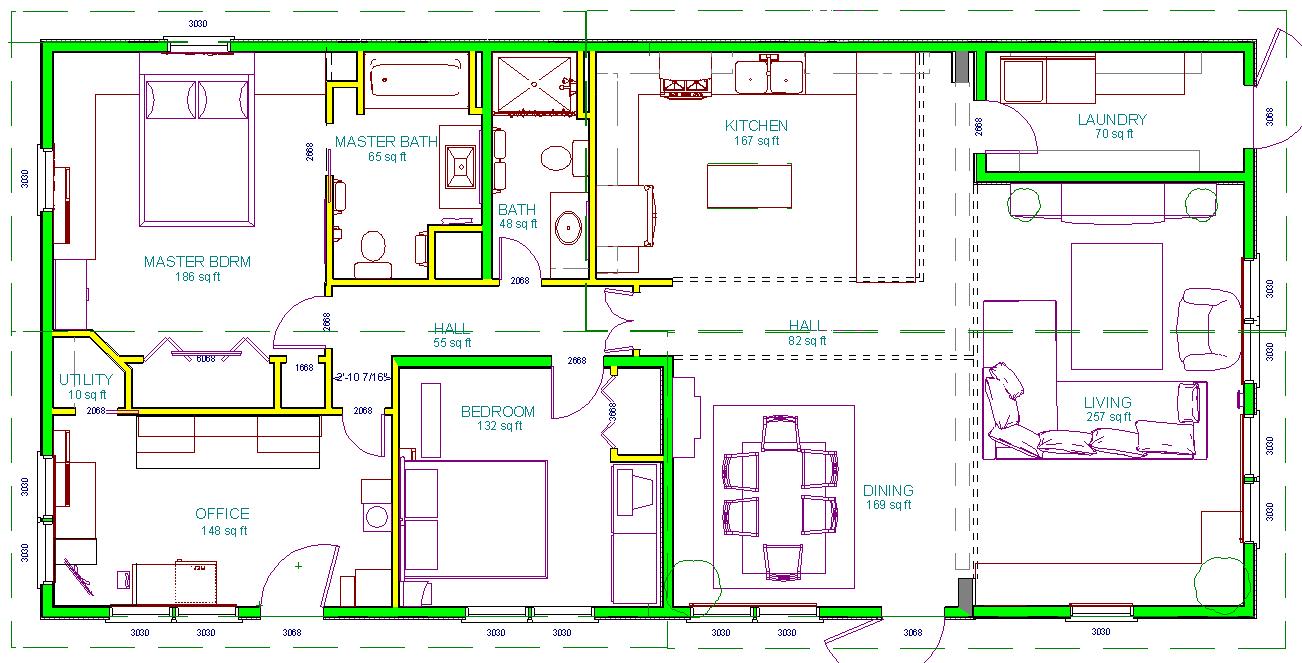
Floorplan

Monday, July 27th, 2009
Floorplan - July 2009

Floorplan - July 2009